רן גולדמן אדריכלים
Work
About
2021
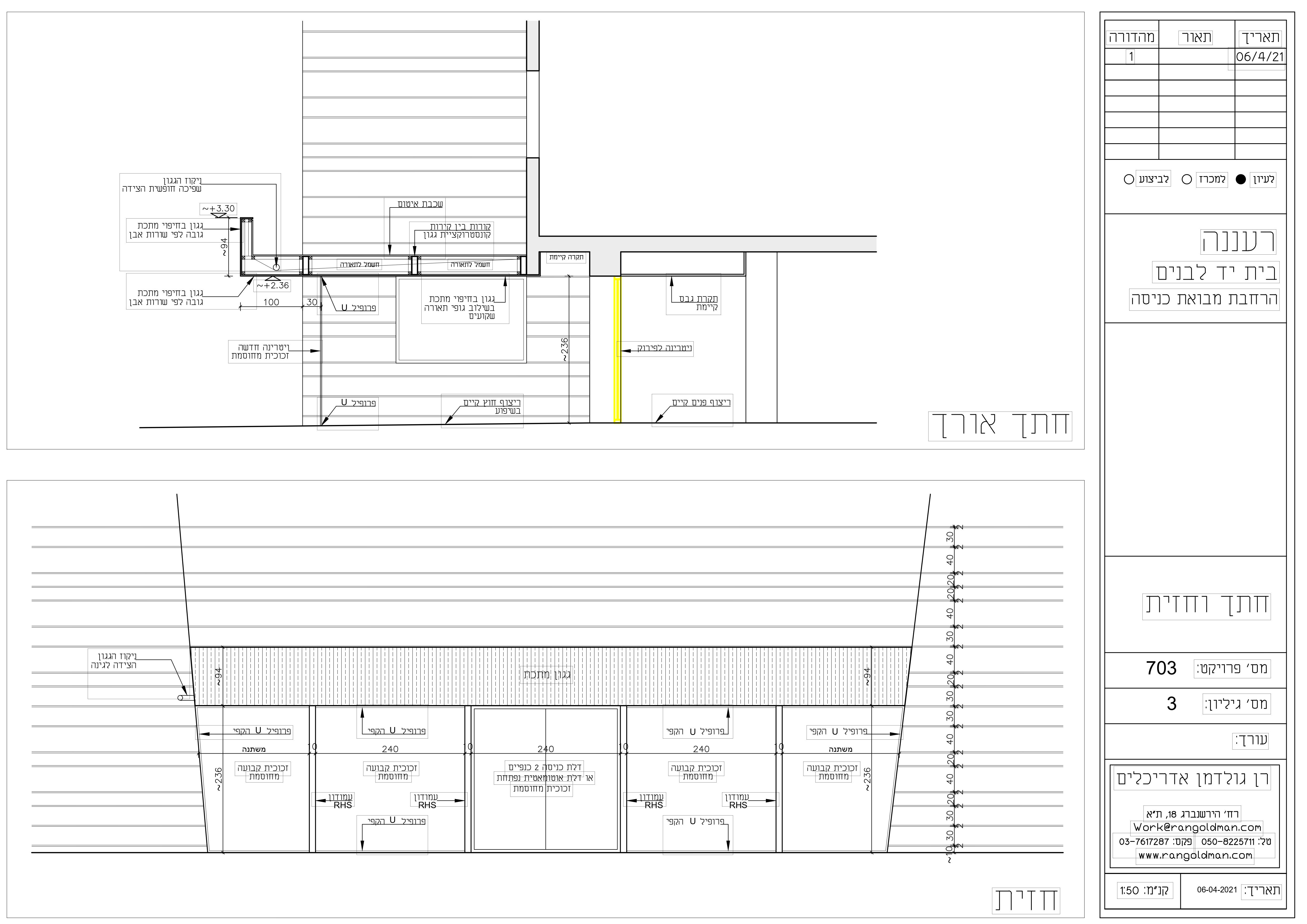
הרחבת מבואה- יד לבנים רעננה
PREV PROJECT
בית נפתלי, תל מונד- תב"ע למבנה ציבור
NEXT PROJECT
טאון האוס, נתניה